
YARVAL
Автор:
YD Interior Studio
Номінація:
Найкращий проєкт квартири
Телефон:
+380931439381
Пошта:
juliaolenchyn@gmail.com
Площа проекту:
200
М2
Фотограф:
Євгеній Авраменко
Вебсайт:
https://yevheniiavramenko.com/home
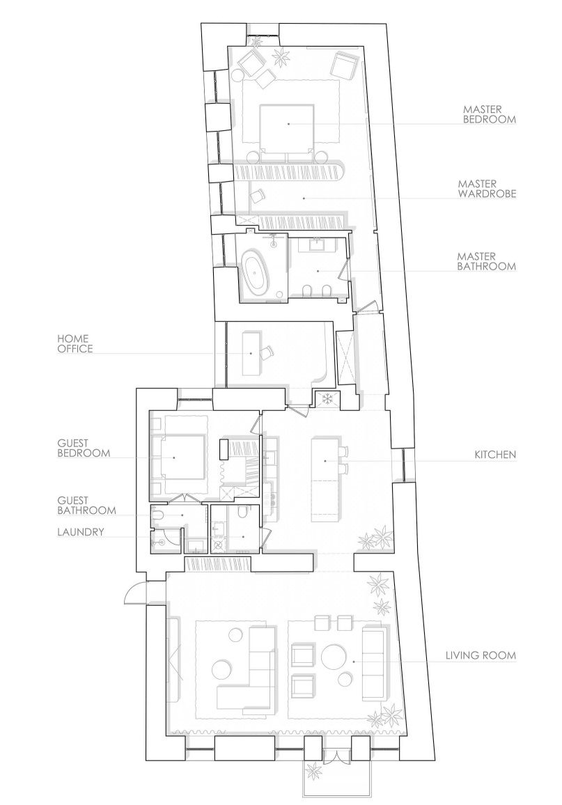
Квартира розташована в історичному центрі Києва, біля Золотих воріт.
Власник квартири має галерею та є колекціонером сучасного мистецтва. Стіни помешкання прикрашені роботами молодих художників з усього світу.
Висота стель у квартирі становить 3,2 м, і майже всі приміщення мають неправильну форму. Під час демонтажу гіпсокартонних конструкцій була відкрита ліпнина, яку неможливо було відновити, тому вирішили зробити ідентичну копію. У вітальні розмір стельового багета становить 900×450 мм. Разом із шторами, дерев’яними віконними порталами та великими полотнами дизайнер досягнув мети зберегти правильні пропорції приміщення.
Функціонально квартира поділена на дві зони: громадську — з вітальнею та кухнею, кабінетом, гостьовою кімнатою і пральнею; та приватну — з великою спальнею, гардеробом і ванною кімнатою.
Клієнт є великим поціновувачем вінтажних меблів. Усі предмети були привезені з Європи.
Особливої уваги заслуговує кухня, яка стала сполучною ланкою між загальною та приватною зонами. З кухні також є вихід до кабінету через двері, виконані за ескізами дизайнера. Малюнок вітража нагадує візерунки у стилі ар-деко. Для цього довелося змінити форму арки у стіні.
У санвузлі є велике вікно. Щоб прийняти душ та залишитися наодинці, достатньо лише пересунути дзеркало від ванни до вікна.
Варто зазначити, що клієнт з великою довірою поставився до створення дизайну, і реалізовану квартиру дуже складно відрізнити від початкових візуалізацій.
В інтер’єрі поєднано класичні елементи, вінтажні й мінімалістичні сучасні меблі та освітлення — усе це стало основою стилю студії YD.














.jpg)
.jpg)
.jpg)
.jpg)
.jpg)
.jpg)

.jpg)

