.webp)
Сонячні барви
Автор:
Світлана Сердюк
Номінація:
Найкращий проєкт квартири
Телефон:
+380660677233
Пошта:
S2sdcomua@gmail.com
Площа проекту:
170
М2
Фотограф:
Павло Ботанов
Вебсайт:
Реалізація: 2023 рік
Інтер’єр дворівневих апартаментів в сучасному комплексі, розташованому в затишному зеленому районі міста, вийшов яскравий, функціональний та харизматичний, який ідеально підходить Замовникам – сучасній родині з двома синами та домашнім улюбленцем коргі.
Для інтер’єру ми обрали кольорову гамму, з двох акцентних кольорів - синій та помаранчевий, базою для них став світлий глиняний та різні текстури дерева.
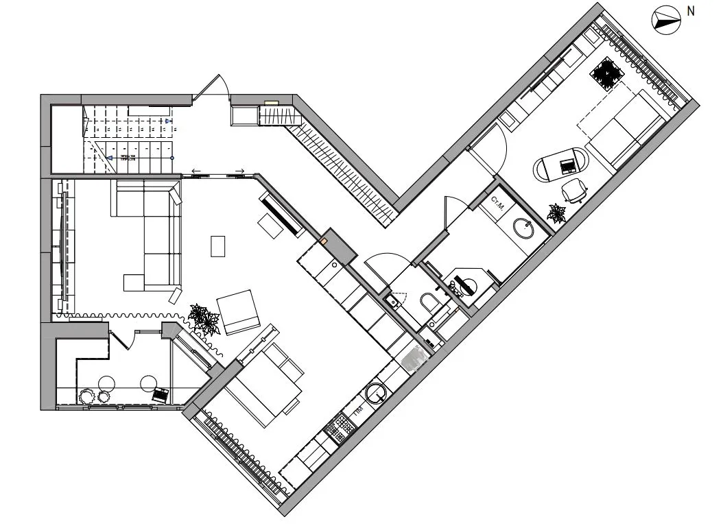
Від забудовника ми отримали планування складної форми абсолютно ідентичне на кожному поверху. Квартира видова, розташована на двох останніх поверхах з панорамними вікнами у кожній кімнаті, з ізольованими кімнатами, просторою довгою транзитною зоною, двома санвузлами, душовою та ванною кімнатами.
Серед недоліків - складна конфігурація стін з непрямими кутами та відсутність сходів на другий поверх.
Основною вимогою замовників було отримати елегантний сучасний простір, щоб було багато простору, світла, функціональних зон та місць зберігання, оснащення оселі високотехнологічними рішеннями, як система розумного будинку, система вентиляції, контролю доступу, система акустики в кожній кімнаті, комплексне очищення води.
Побажанням було отримати простору зону основного приміщення вітальні із зоною дивану та домашнім кінотеатром, поєднану з великою функціональною кухнею та обідньою зоною поруч з панорамним вікном з якого відкривається неймовірний краєвид і можна спостерігати прекрасні заходи сонця.
Переходимо до огляду самого інтерєру.
Сходи, оздоблені натуральним шпоном, зберігають цілісність двох рівнів, публічного і приватного, і є оригінальним доповненням до інтер’єру. Для підлоги у транзитній зоні використали керамограніт.
Зона передпокою, яка плавно переходить у транзитну зону з великою шафою з відкритим відділенням.
Розсувні двері зі склом з масиву дерева та латунними ручками відокремлюють студійний простір вітальні від зони передпокою та сходів на другий поверх.
На першому поверсі розташований студійний простір з вітальнею та кухнею, який включає лаунж-зону із домашнім Hi-End кінотеатром, інтегрований у дизайн меблів по ескізам дизайнера, які майстерно виконали наші партнери – столярна майстерня «UZOR».
Задача була гармонійно поєднати дві функції: акустичну та естетичну, щоб не нашкодити один одному, а доповнити, підсилюючи емоційний позитивний вплив на слухача.
Простір вітальні та кухні розділили стеллажем-перегородкою по ескізам дизайнера.
Кутова кухня з подвійним рядом верхніх секцій до стелі дозволяє ефективно використовувати простір та включає в собі всі функціональні елементи.
У першій частині кухні ми розмістили скляну вітрину для посуду та колекції вин, духову та піч СВЧ, холодильники SIDE-by-SIDE, у другій частині – мийка, робоча поверхня та вітрина з вбудованою кавомашиною. В кутовій частині ми розташували професійну комплексну систему очищення води AKVANTIS та забезпечили зручний доступ до інженерних систем.
Кабінет, душова кімната та гостьовий санвузол розміщено відокремлено від шумної студії. Меблі для кабінету та робочий стіл ми ретельно проєктували з врахуванням всіх побажань замовника.
В душовій кімнаті на стінах для оздоблення використано крупноформатна яскрава плитка від DIESEL в поєднанні з більш спокійною в холодному відтінку, але це виглядає гармонійно та збалансовано. Тумба під умивальник спроєктована з вбудованою прально-сушильною машиною.
Другий поверх є більш приватним з майстер спальнею з власною гардеробною, двома кімнатами синів, ванною, санвузлом та транзитною зоною з шафою для платівок та гітар.
Безумовною родзинкою проєкту та чудовою прикрасою майстер-спальні став художній розпис в узголів’ї за мотивами картини «Квіти та горіхи» видатної української художниці Катерини Білокур. Ця чудова робота у виконанні інтер’єрної художниці Анни Кловак Dom Decor сповнена сяйва і гармонії поєднання жіночого та чоловічого світів.
Гардеробна кімната з натуральної деревини та шпону з функціональними зонами для побутових приборів, парової станції, місць зберігання та великим настінним дзеркалом.
Ми розмістили вітрину для прикрас та дрібниць, де розташований електричний щиток і закрили це місце дзеркалом.
Елегантна та витончена ванна кімната оздоблена керамограніту Callacata, місце затишку та релаксації.
Кімнати синів харизматичні за характером, продуманим функціоналом, яскравою кольоровою гамою, які залишаться актуальними навіть, коли діти подорослішають.
В транзитній зоні другого поверху розмістили шафу для гітар та платівок.
Всі меблі, крім мʼяких, авторські і створені саме для цього проекту.
При виробництві меблів ми ретельно приділяли увагу не тільки функціональності та вибору матеріалів, а й декоративним елементам.
Керована голосом система розумного будинку автоматизує освітлення, клімат, контроль доступа, ТВ та акустику і значно економить споживання енергії.
Зараз можемо впевнено сказати, що пишаємося своєю роботою над цим проектом.
























