
Modern Brutalism: мансардна квартира в Осло, натхненна Томом Фордом
Автор:
IK-architects (Катерина Ярова)
Номінація:
Найкращий проєкт квартири
Телефон:
+380509151894
Пошта:
ik.architects.box@gmail.com
Площа проекту:
87
М2
Фотограф:
Veronika Moen
Вебсайт:
https://ik-architects.com/uk/portfolio_page/
Двоповерхова квартира в Осло — бруталістичний стиль із ноткою скандинавського мінімалізму
Спільний проєкт девелоперської компанії Predio та українського бюро IK-architects
Концепція
Після успішної реалізації мансардної квартири HG-31 в Осло архітектурне бюро IK-architects у співпраці з девелопером Predio представило новий проєкт — двоповерхову квартиру в стилі бруталізму з натхненням від естетики Тома Форда.
Головною метою було створення простору для молодої людини або пари без дітей: затишного, сучасного та стильного, але з характером.
Планувальні рішення
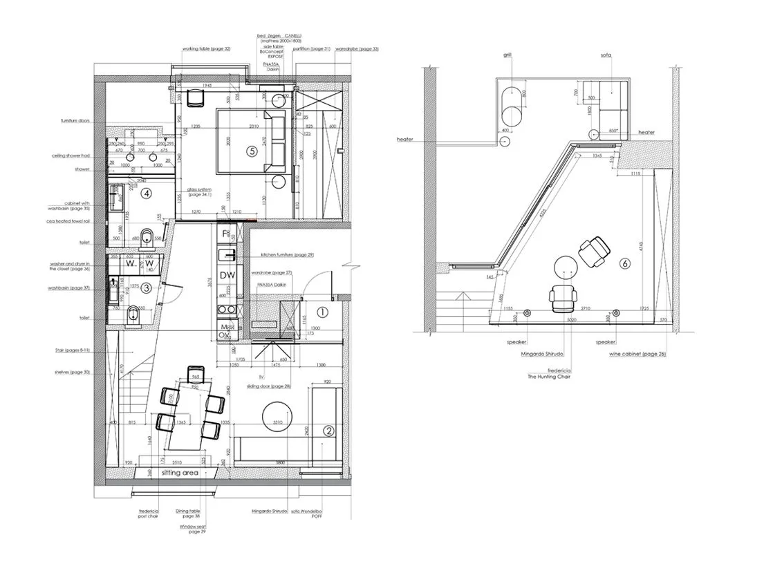
Квартира має два рівні та чітке зонування, яке відділяє приватну частину від громадської. На першому поверсі розташовані простора кухня-вітальня, санвузол та спальня з прихованою системою зберігання. Незвичним рішенням стала скляна стіна між спальнею та душем, яка створює додатковий акцент та підкреслює індивідуальність простору.
Дизайн і матеріали
Інтер’єр поєднує мінімалізм і бруталізм.
Бетонна стіна та мікроцементна підлога залишені автентичними, підкреслюючи характер будівлі.
Необроблений чорний метал використаний у сходах та деталях інтер’єру, покритий лише прозорим матовим лаком.
Баланс створюють натуральне дерево, рудий метал, акцентні стільці та яскрава блакитна картина, що додає інтер’єру тепла й колористичної глибини.
Особливим рішенням стала розсувна темна монолітна система, яка приховує кухонний блок та вхідні двері. Ця деталь вже стала характерною рисою співпраці Predio та IK-architects, адже аналогічне рішення було реалізоване у проєкті HG-31.
Атмосфера
Попри використання темних матеріалів, інтер’єр виглядає світлим і комфортним завдяки продуманій стратегії освітлення, використанню дерева та гармонійному поєднанню фактур. Це простір, що не лише функціональний, а й емоційний — він трансформує відчуття мешканців та створює унікальний життєвий досвід.
Значення
Проєкт є прикладом того, як реновація занедбаного горища може дати місту нове якісне житло. Він демонструє синергію двох професійних команд: Predio, які спеціалізуються на переобладнанні мансард у центральній частині Осло, та IK-architects, українського бюро з понад 10-річним досвідом у створенні інтер’єрів у стилі скандинавського дизайну та мінімалізму.
Ця реалізація — не лише стильне рішення, а й внесок у сталий розвиток міста, де архітектура працює на підвищення якості життя через повторне використання та осмислену трансформацію простору.























