
Linden 9.2
Автор:
Sivak+Partners
Номінація:
Найкращий проєкт квартири
Телефон:
+380633437489
Пошта:
mail@sivak-partners.com
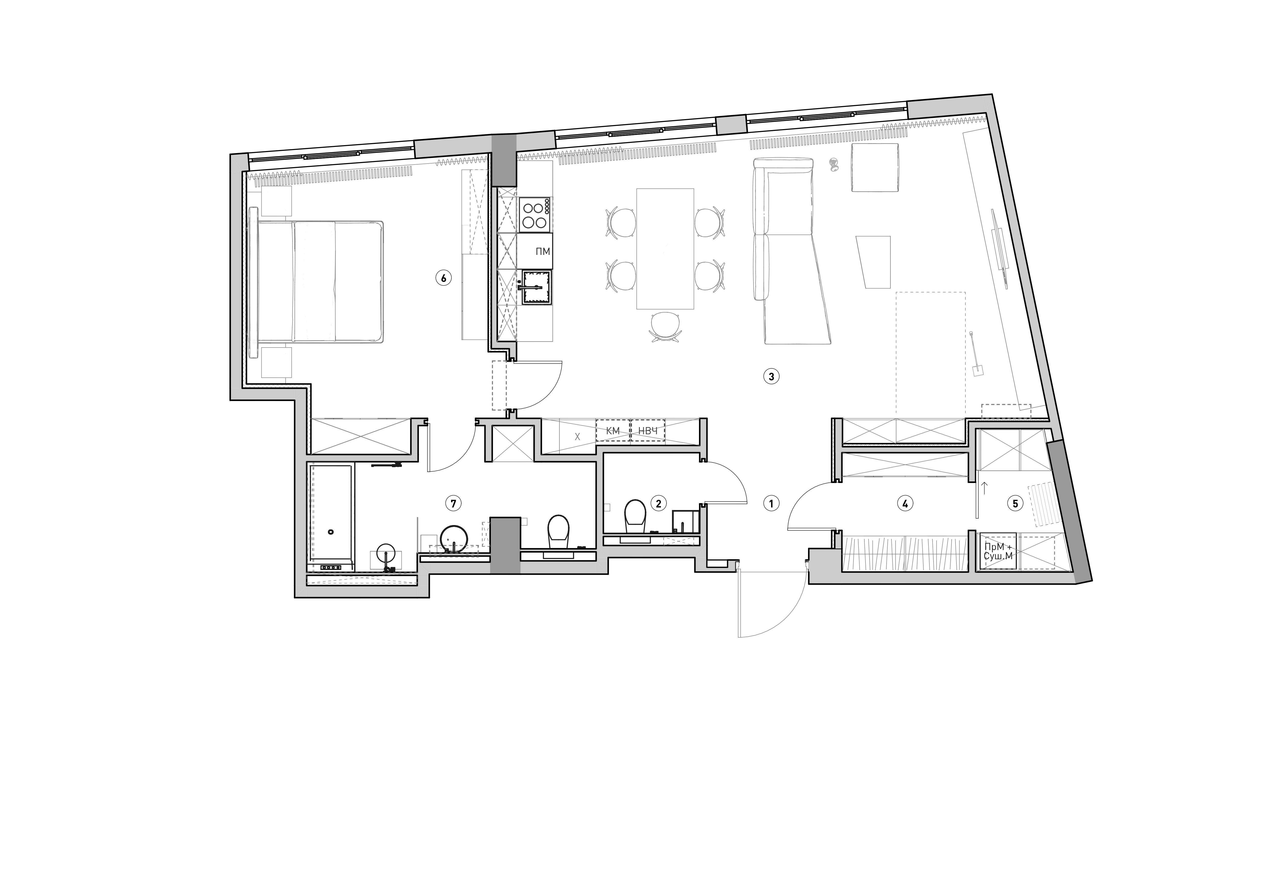
Площа проекту:
88
М2
Фотограф:
Андрій Шурпенков
Вебсайт:
https://sivakpartners.com/
Розташування: Київ, Україна
Команда: Олексій Гулеша, Вікторія Романюк, Сергій Плінокос
Рік: 2025
Квартира знаходиться в самому центрі Києва, на вулиці Лютеранська. Спочатку розроблений як затишне приміщення для оренди, проект перетворився на щось набагато більше. Клієнт не лише представив кілька чудових ідей, але й заохотив нас зробити те саме, зробивши весь процес безперебійною співпрацею між далекоглядною командою дизайнерів та перфекціоністом-власником, орієнтованим на деталі.
В інтер’єрі відчувається яскраво виражений скандинавський вплив, що проявляється в стільцях Carl Hansen і дерев’яному паркеті. Але ми хотіли поєднати його з українськими промисловими меблями та елегантним італійським освітленням. Ось так простір об’єднався з журнальними столиками DIZA Collective, підвісним світильником Flos та багатьма іншими ретельно підібраними деталями. Зважаючи на обмежений простір для великої кухні, ми вирішили збільшити глибину стільниці та включити сталеві полиці, щоб збільшити функціональність. Одним із наших улюблених рішень є вбудовані верхні шафи, плавно інтегровані в стіну для чистого, мінімалістичного вигляду.
Кожна поверхня та матеріал гармоніюють з іншими, додаючи унікальні текстури та тонкі варіації тону, додаючи глибини та характеру простору. Наша улюблена лампа Taccia від Flos знайшла своє ідеальне місце тут, створюючи м’які округлі відблиски, які м’яко зігрівають нейтральні стіни та покращують атмосферу.























