
WHITE
Автор:
DARIN
Номінація:
Найкращий проєкт квартири
Телефон:
+380638897739
Пошта:
shpurykdaryna@gmail.com
Площа проекту:
80
М2
Фотограф:
Юлія Шпурик
Вебсайт:
https://www.instagram.com/daryna_shpuryk/
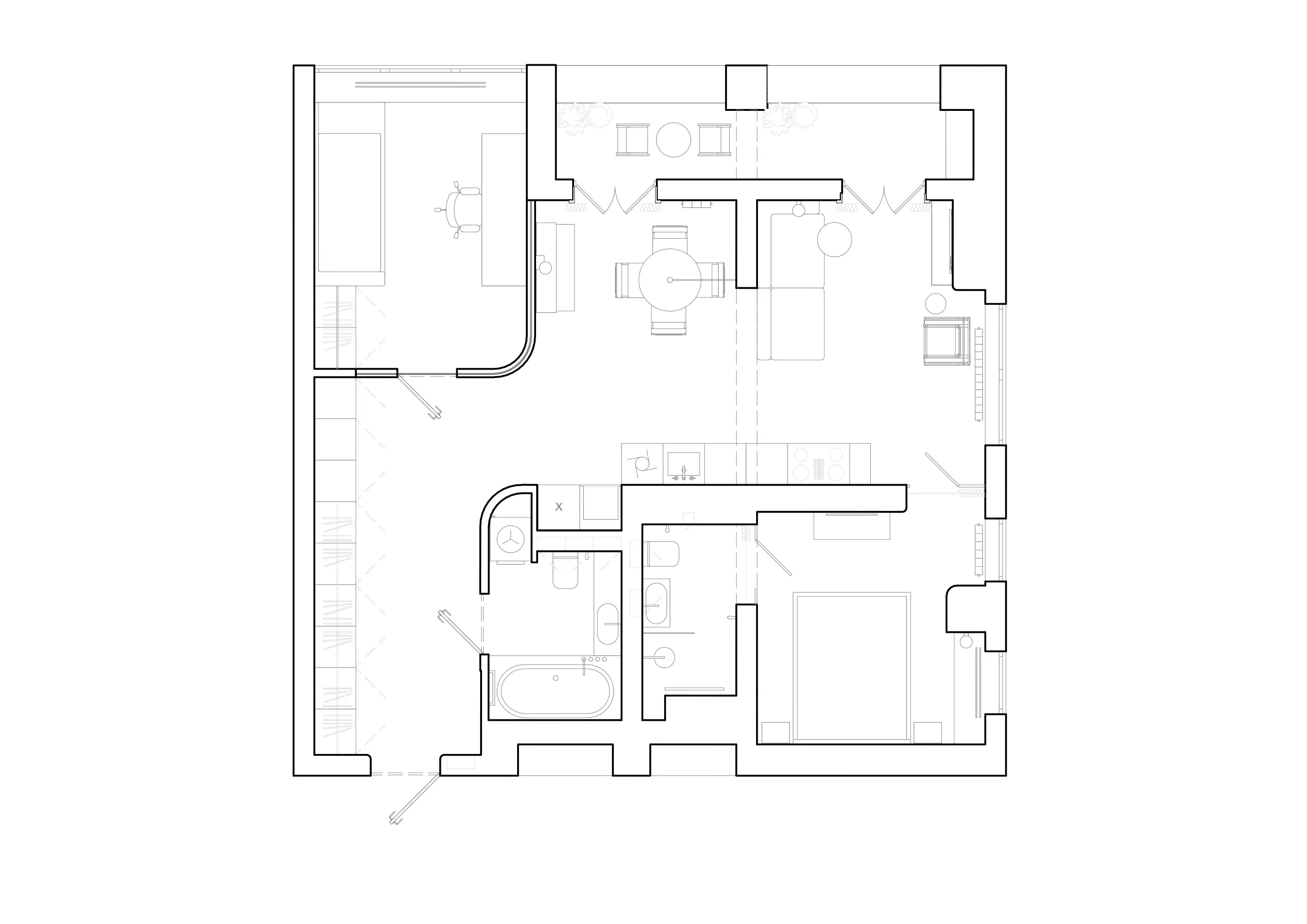
Більше простору, більше висоти, більше світла!
Три ключові принципи, які керують мною у процесі проектування. Вони надихнули на введення округленого скла, що збільшує потік світла прямо зі входу.
Я ціную універсальність білого кольору, що дозволяє змінювати настрій простору залежно від додавання предметів.
Серцем квартири стало поєднання гостьової з круглим столом і піаніно. Висота стелі 3,6 м збережена, крім ванної кімнати, де стелю знижено. Інтегровані системи очищення та кондиціонування повітря. Для зберігання у високих зонах використовується рухома драбина з нержавіючої сталі. Ванна кімната — нейтральна, з мікроцементу. Всі додаткові елементи - з латуні. Головна деталь — зігнуте скло в спальні під стелею, що об’єднує зони входу, вітальні та дитячої. Зручності додають згладжені кути, що підкреслюють висоту простору.
Ця квартира стала майже рідною, адже я мала щастя жити в ній і відчути простір, створений власноруч.
Мої клієнти віддають перевагу мінімалізму. Велике щастя, коли клієнти повністю довіряють і наші смаки співпадають.
















