
Summands
Автор:
Катерина Ярова
Номінація:
Найкращий громадський проєкт
Телефон:
+380509151894
Пошта:
ik.architects.box@gmail.com
Площа проекту:
130
М2
Фотограф:
Ірина Бунакова
Вебсайт:
https://ik-architects.com/uk/portfolio_page/
Концепція
Дизайн простору народжувався з розуміння естетичної медицини як мистецтва тонких змін. Дизайнери IK-architects перетворили це розуміння на просторову мову: холодна точність нержавіючої сталі зустрічається з теплом натурального дерева, гострі кути розчиняються в плавних лініях, а простір буквально "обтікає" відвідувача.
«Ми хотіли, щоб простір мав ті ж ознаки, що й інʼєкції — округлість, плавність, делікатне перетікання форм. Там, де ми не могли фізично зробити округлі стіни, ми створювали їх за допомогою текстилю — криволінійні карнизи, м’які штори. Простір ніби «обтікає» відвідувача», — коментує засновниця та головна архітекторка IK-architects Катерина Ярова.
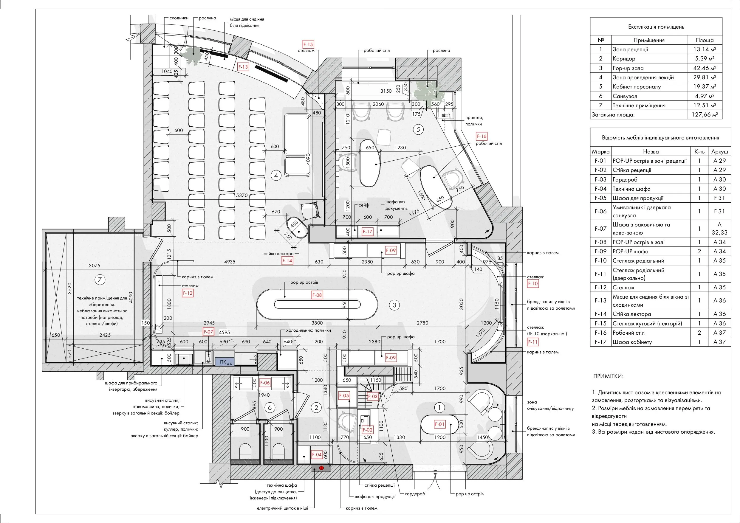
Планувальне рішення передбачає чітке розділення потоків і гнучкий сценарій використання простору — як для щоденної роботи менеджерів, так і для подієвих форматів з аудиторією до 30 осіб. Завдяки ергономічним проходам і комфортному зонуванню відвідувачі вільно пересуваються між зонами, не створюючи скупчень. Після лекційної частини учасники безперешкодно потрапляють у демонстраційну зону: простір спроєктовано так, щоб максимально природно вести їх до поп-ап стенда. Його кругла форма дозволяє одночасно оглядати експоновану продукцію з різних боків — дотик, взаємодія й огляд стають зручними навіть для великої кількості людей.
Інтерʼєр
Summands розташований у стилобатній частині ЖК «Володимирський» і складається з двох черг по 130 м² кожна. Перша — навчальна зона зі змінними експозиційними стендами, над нею ми й працювали, друга — бек-офіс для управлінської команди, над цією частиною ми тільки розпочали роботу.
Планувальне рішення побудоване як сценарій: від моменту входу відвідувач потрапляє у заздалегідь продуманий потік руху. Рецепція з зоною очікування плавно веде до лекторію на 30 місць, звідти — до демонстраційної зони. Ніяких затримок чи скупчень при заповненості простору людьми.
Центральною точкою став круглий поп-ап стенд — своєрідний п'єдестал для презентації продукції. Його форма дозволяє відвідувачам вільно пересуватися навколо, розглядаючи експонати з усіх боків, а підвісне акцентне освітлення створює відчуття сцени.
Функціональність
Кожен елемент інтер'єру поєднує естетику з практичністю:
Вхідна група — перше знайомство з простором, де рецепція стає не просто робочим місцем, а точкою початку трансформації.
Лекторій — обладнаний інтерактивною панеллю та проєктором.
Демонстраційні зони — дві поп-ап локації зі змінним наповненням. Перша зустрічає гостей біля входу, друга — основний функціональний острів з натурального дерева з RGB-підсвічуванням, яке адаптується до кольорів конкретного бренду.
Кабінет менеджера — приватний простір для завершення навчального процесу та укладанням контрактів.
«Нам було важливо, щоб взаємодія з простором відбувалася на рівні відчуттів та була інтуїтивно зрозумілою. Як і сама косметологія, інтерʼєр Summands — це про делікатне втручання у сприйняття, про створення нового досвіду через дотик до краси», — додає Катерина Ярова.
Простір створений не тільки для навчання, він формує нове розуміння естетичної медицини як мистецтва, де кожна деталь має значення, кожна лінія розповідає історію, а кожен дотик може змінити світ.
Summands стає місцем, де експерти в ніші вивчають техніки, водночас занурившись у філософію краси, а інтерʼєр грає ключову роль у підсиленні цього відчуття.
















.webp)