
Shven Man Massage
Автор:
Єлизавета Одінцова
Номінація:
Найкращий проєкт збереження історичного середовища
Телефон:
+380990667776
Пошта:
Lizaveta.odintsova@buroodintsova.com.ua
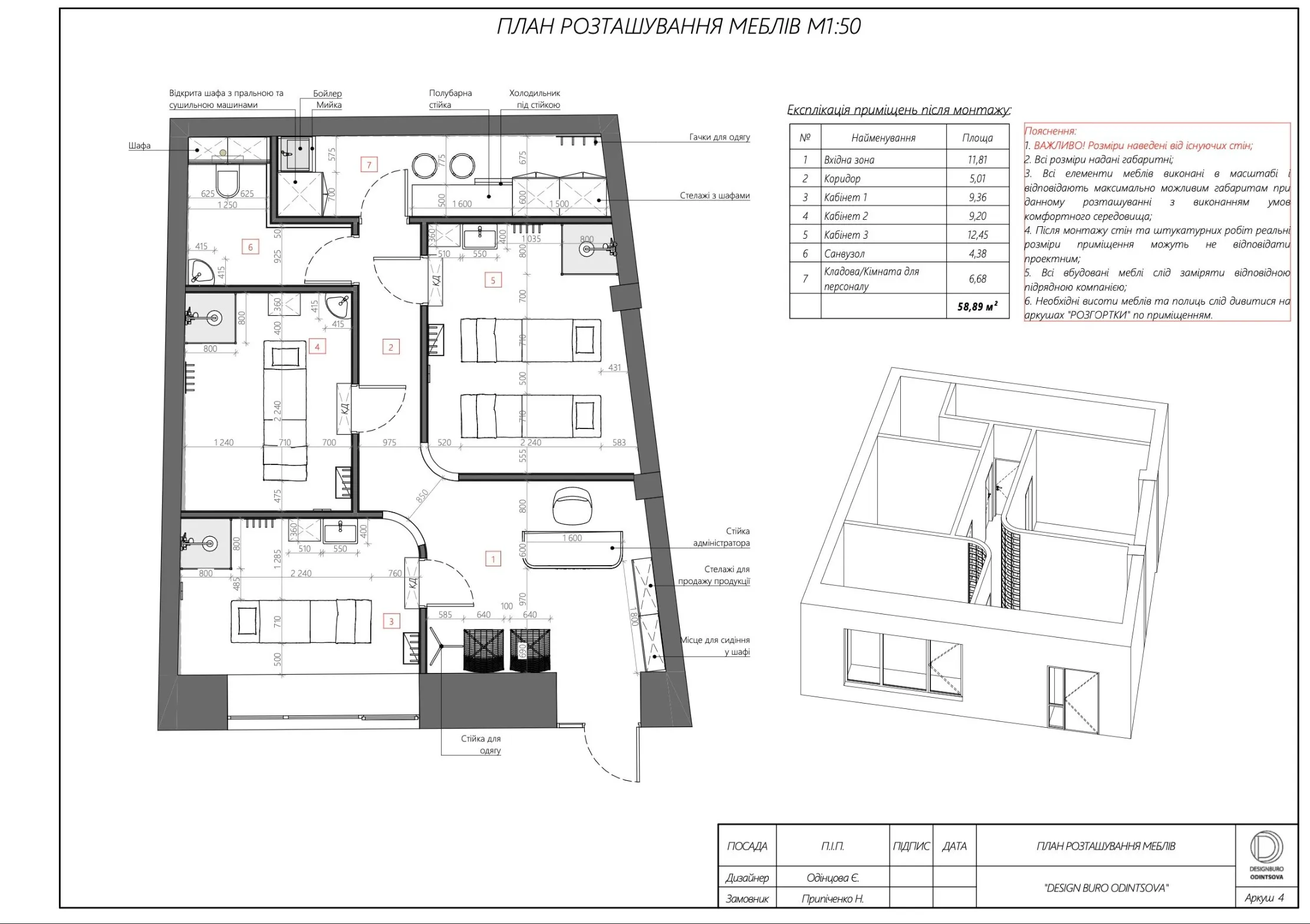
Площа проекту:
50
М2
Фотограф:
Сергій Савченко
Вебсайт:
buroodintsova.com.ua
Розташований у самому серці Києва, в історичному комплексі «Арсенал» — одній із найвідоміших архітектурних пам’яток міста — цей простір вшановує минуле, водночас утілюючи сучасний підхід до здоровʼя та відновлення наших чоловіків, наших героїв, бізнес концепція орієнтована на добробут нашої країни.
Проєкт був задуманий із глибокою повагою до спадщини будівлі: автентичну цегляну кладку XIX століття ретельно збережено та інтегровано як ключовий елемент інтер’єру.
Простір поєднує індустріальну автентичність із спокійною атмосферою спа: старовинні цегляні стіни та темна бетонна підлога зустрічаються з м’якими текстилями та масажними столами з натурального дерева.
Перфоровані стельові панелі з лінійним скульптурним освітленням створюють тепле, обволікаюче сяйво, а мінімалістична душова зона додає функціональності, не порушуючи атмосфери. Нотки зелені оживлюють стриману естетику, врівноважуючи брутальність ніжністю.
Тиха схованка в самому серці міста, спроєктована для спільної тиші, глибокого розслаблення та тактильного зв’язку.
















