
Samma
Автор:
Globarch Group
Номінація:
Найкращий громадський проєкт
Телефон:
+380999847911
Пошта:
Annzhulyn@gmail.com
Площа проекту:
339,41
М2
Фотограф:
Микола Корсун
Вебсайт:
https://globarch.com.ua/en/
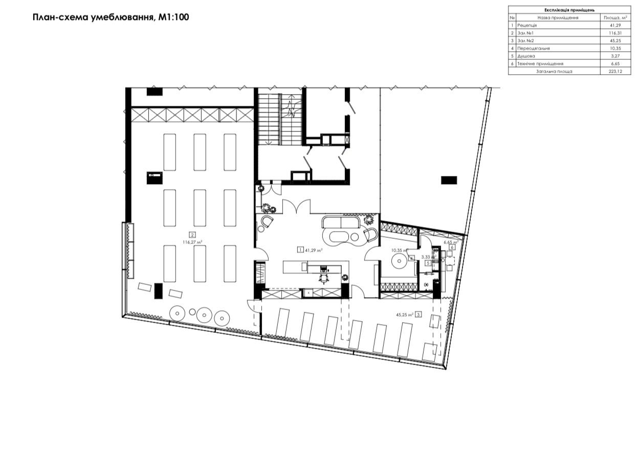
Студія пілатесу «Samma» виражає сучасний та мінімалістичний дизайн,який поєднує естетику з функціональністю. На рецепції встановлені стильнісвітильники індивідуального виготовлення, які створюють затишнуатмосферу.
Підлога виконана з якісного вінілового покриття, що додаєпрактичності та довговічності зоні очікування. Стіни прикрашені панелями зДСП під дерево дуб, що додає тепла та натуральності інтер'єру. Длязручності клієнтів передбачені мінімалістичні меблі, а на поличкахрозташована продукція.У залі для заняття використана паркетна підлога, яка забезпечує комфорт підчас тренувань. Колони в інтер'єрі оздоблені декоративною плиткою ручноїроботи, яка додає унікальний акцент. Велика кількість дзеркал на стінахстворює ідеальні умови для оглядовості, дозволяючи клієнтам стежити заправильною технікою виконання вправ. Також в залі передбачені шафиприміщення для зберігання інвентарю, які органічно вписані в загальнийпростір.
Приміщення студії продумані до дрібниць: зона для перевдягання обладнаназручними шафками та великим дзеркалом, а також душовою для комфортуклієнтів. Легкі штори в зоні залу створюють атмосферу приватності,забезпечуючи відчуття спокою і затишку. Це місце ідеально підходить длягармонійного тренування і відпочинку.












