
Riga. House
Автор:
Грабовський Олександр
Номінація:
Найкращий проєкт будинку
Телефон:
+380503629103
Пошта:
algrabovskiy@gmail.com
Площа проекту:
150
М2
Фотограф:
Іван Авдєєнко
Вебсайт:
https://grabovskiy.com/
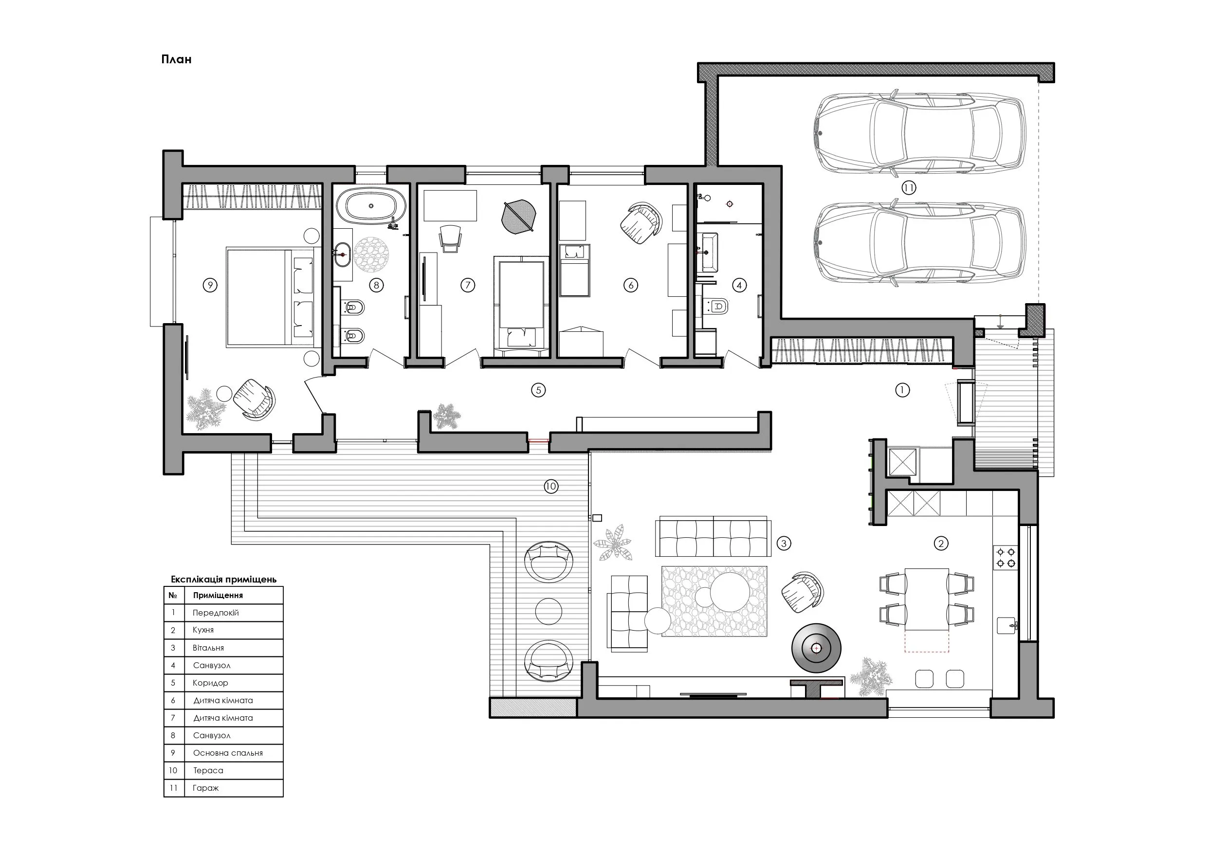
Проєкт Riga. House - це проєкт - реконструкція заміського приватного будинку в передмісті Риги.
Затишний інтер'єр у теплих тонах і природних матеріалах дерева та каменю.
Планувальне рішення розділяє функціональні зони перебування вдень і приватну зону відпочинку зі спальнями. З обох зон є вихід на затишну терасу внутрішнього двору.
Основним акцентом затишку в інтер'єрі кухні-вітальні є панорамний камін FOCUS FILIOFOCUS, дана модель має максимальний огляд вогнища, що проглядається з будь-якої точки простору,
Панорамне скління стирає кордон інтер'єру та екстер'єру будинку, а натуральний камінь на фасаді будівлі переходить в інтер'єр.























