
Проєкт кафе "Глечик"
Автор:
Рак Вікторія Сергіївна
Номінація:
Найкращий концепт проєкту
Телефон:
+380966225868
Пошта:
vikarak2001@gmail.com
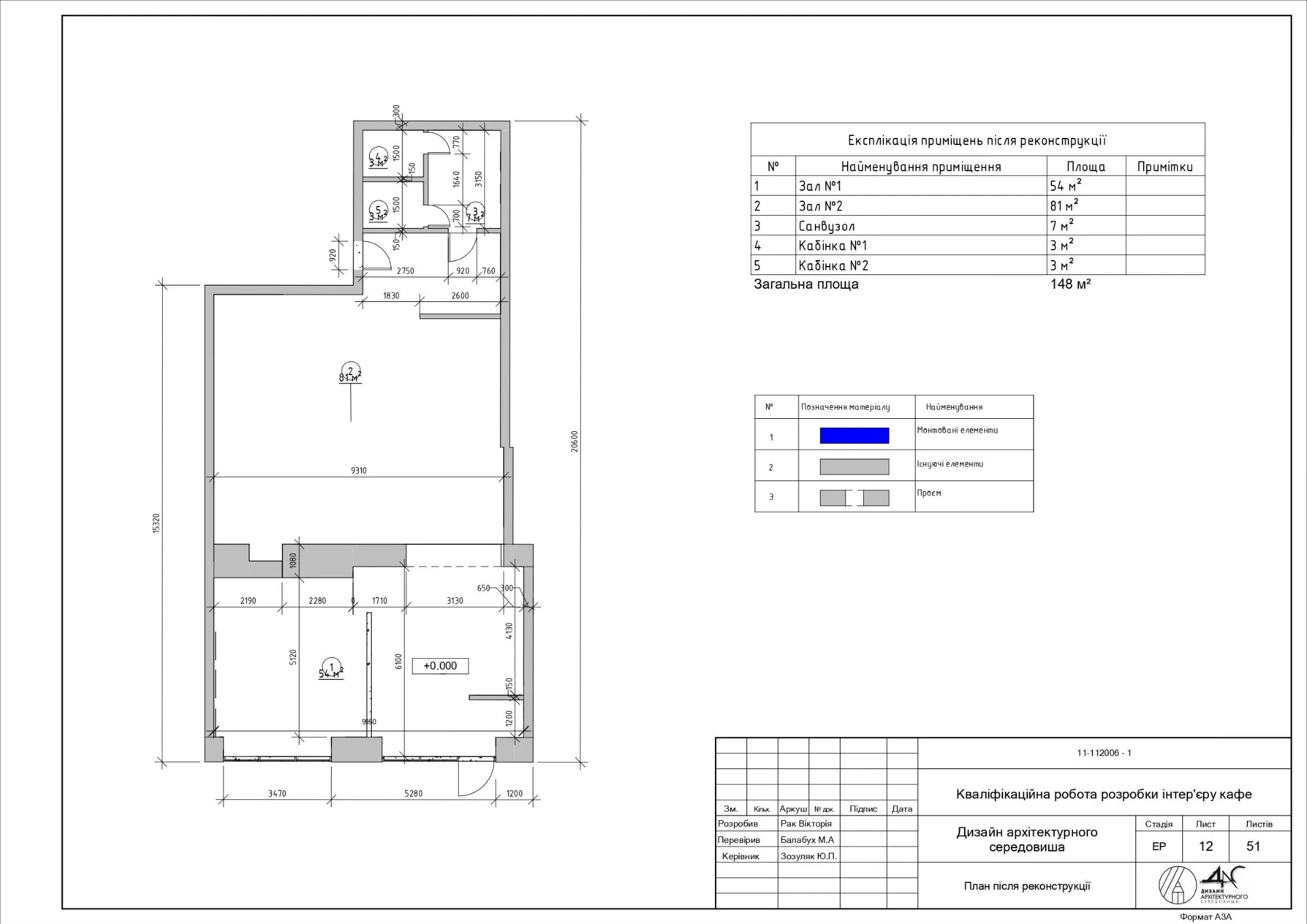
Площа проекту:
148
М2
Фотограф:
Візуалізація за допомогою програми 3ds Max
Вебсайт:
Кафе «Глечик» поєднує традиційні архітектурні елементи з естетикою вабі-сабі, підкреслюючи красу недосконалості через природні матеріали та текстури. Спокійний інтер’єр у сірих і земляних тонах доповнений керамікою ручної роботи та грубо обробленим деревом, створюючи затишну й автентичну атмосферу. Мінімалістичний дизайн дозволяє гостям зосередитися на смаку страв, водночас відчуваючи гармонію простору.
У дизайні інтер’єру використано столи SONIAH coffee table tall FAINA by Yakusha та KOROTUN big coffee table FAINA by Yakusha, а також світильники Khmara © Rough makhnostudio.










