
Poli House
Автор:
Bezmirno Architects
Номінація:
Найкращий проєкт будинку
Телефон:
+380676596593
Пошта:
info@bezmirno.com
Площа проекту:
297
М2
Фотограф:
Андрій Шурпенков
Вебсайт:
https://www.bezmirno.com/project/poli-house/
Основним завданням, яке наша команда ставила перед собою розробляючи архітектурний проект Poli House це гармонійно поєднати архітектуру будинку з навколишнім середовищем. Камінь, дерево та скло, основні матеріали, які використовуються у оформленні цього будинку як ззовні так і всередині.
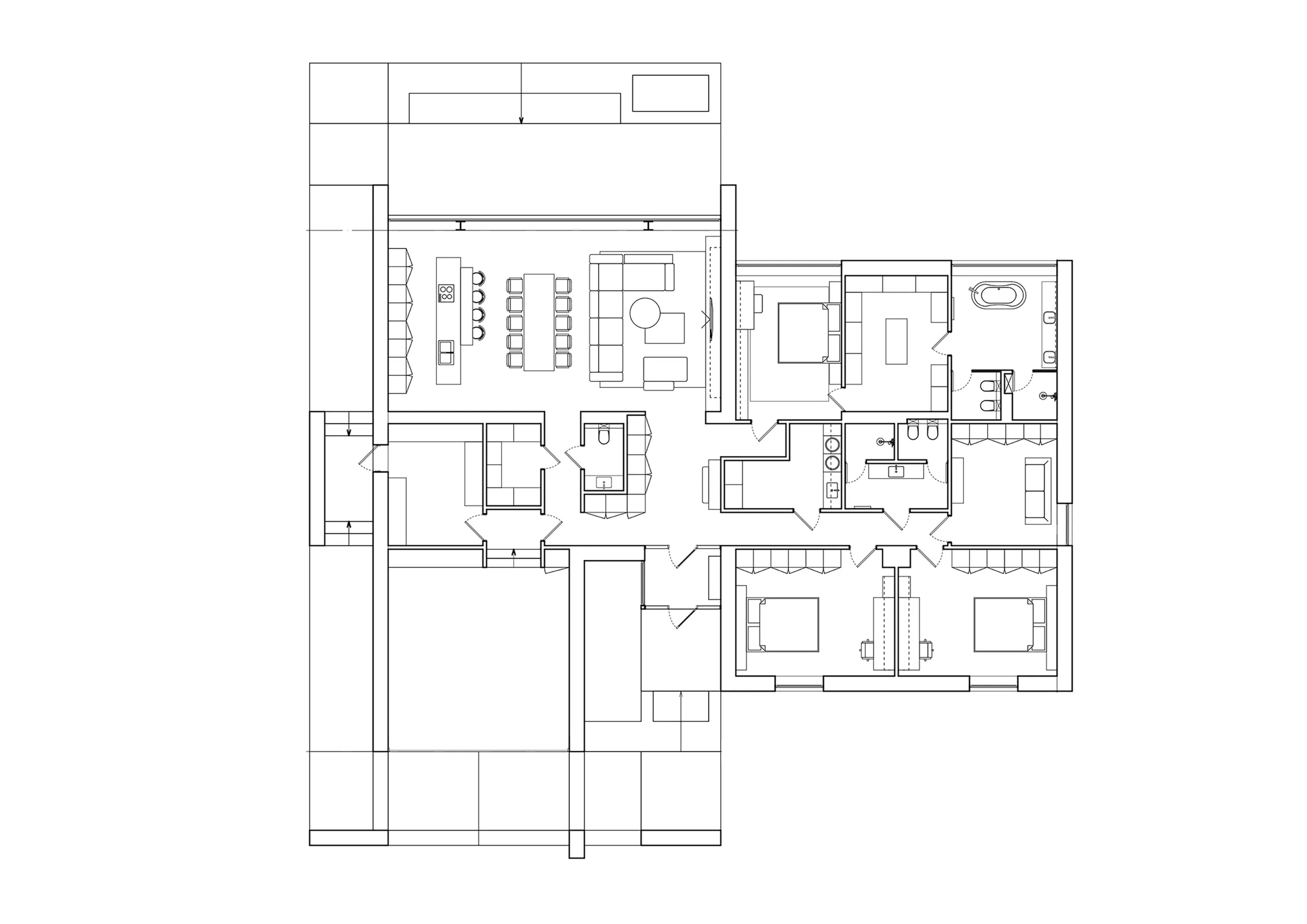
Весь проект будинку можна описати як невеличкий приватний комплекс, що складається з трьох будівель – головного будинку, гостьового та альтанки. При проектуванні, команда Bezmirno, зв’язала всі зони в спільну структуру, в єдиній стилістиці.
Використання панорамних вікон об’єднує екстер’єр та інтер’єр, відсікаючи бар’єр між зовнішнім та внутрішнім простором, що робить його єдиним цілим. Більшість приміщень зорієнтована на ліс, а велика кількість природнього світла, що заповнює усі приміщення, створює атмосферу тепла та затишку.
Загальна площа будинку складає 297 квадратних метрів, що надає достатньо простору, щоб зручно розташувати все необхідне для сім’ї з чотирьох осіб.
Наша команда приділила особливу увагу кожній деталі проекту, щоб створити чистий, затишний та функціональний дизайн будинку, наповнений філософією мінімалізму. Планування будинку максимально зручне та водночас просте, що вміщує в собі два блоки – відкритий простір вітальні-кухні та тихий блок спалень.
Не дивлячись на загальну стриману стилістику, кожна з кімнат має свій особливий настрій. Основна зона вітальні відкрита та простора, стримана та розвантажена від зайвих елементів. М’які меблі, зручні крісла та стильний камін створюють ідеальне місце для зустрічей з родиною та друзями, а також для відпочинку та розваг.
З зони вітальні через терасу можна потрапити в альтанку, яка розташована на задньому дворі, та є ідеальним місцем для відпочинку на свіжому повітрі. Вона поєднується з основною терасою, створюючи велику зону для вечірніх посиденьок та вечерь з друзями. Погода не буде перешкодою, оскільки альтанка забезпечує захист від дощу та сонця. Обладнана зручними меблями та приємним освітленням, де можна насолоджуватися природою і проводити час з родиною та близькими людьми.
Господарська спальня досить мінімалістична і містить лише найнеобхідніше, а дерев’яні елементи додають ще більшого затишку та тепла.
Особливим місцем для усамітнення з природою стала господарська ванна кімната. Саме тут можна насолодитись самотністю і поринути з головою в красу що навколо. Велике панорамне вікно – як портал, що поєднує внутрішній простір та природу за вікном.
Дитячі кімнати виконані в контрастній кольоровій гаммі, поєднанні світлого та темного, з використанням деревини, що створює стимулююче середовище для розвитку і творчості дітей. Функціональність також не залишається осторонь, оскільки кожна дитяча кімната має вмонтовані шафи та робочий стіл для навчання і зберігання речей.
У цілому проект Poli House втілює принципи сучасного дизайну, де кожна деталь має значення і співвідноситься із загальною концепцією. Дизайн проект будинку створений для того, щоб задовольнити потреби сім’ї, забезпечити комфорт і естетичне задоволення. Будинок Poli House – це гармонія форм, матеріалів і кольорів, яка виражає витончений смак та індивідуальність його мешканців.


















