
Lull Apartments
Автор:
Bezmirno Architects
Номінація:
Найкращий проєкт квартири
Телефон:
+380676596593
Пошта:
info@bezmirno.com
Площа проекту:
60
М2
Фотограф:
Євген Авраменко
Вебсайт:
https://www.bezmirno.com/project/lull-apartments/
Затишний мінімалізм – саме це словосполучення, вдало опише дизайн інтер’єру цієї невеликої квартири.
Без зайвого декору, аксесуарів, лише прості лінії, форми та натуральні матеріали.
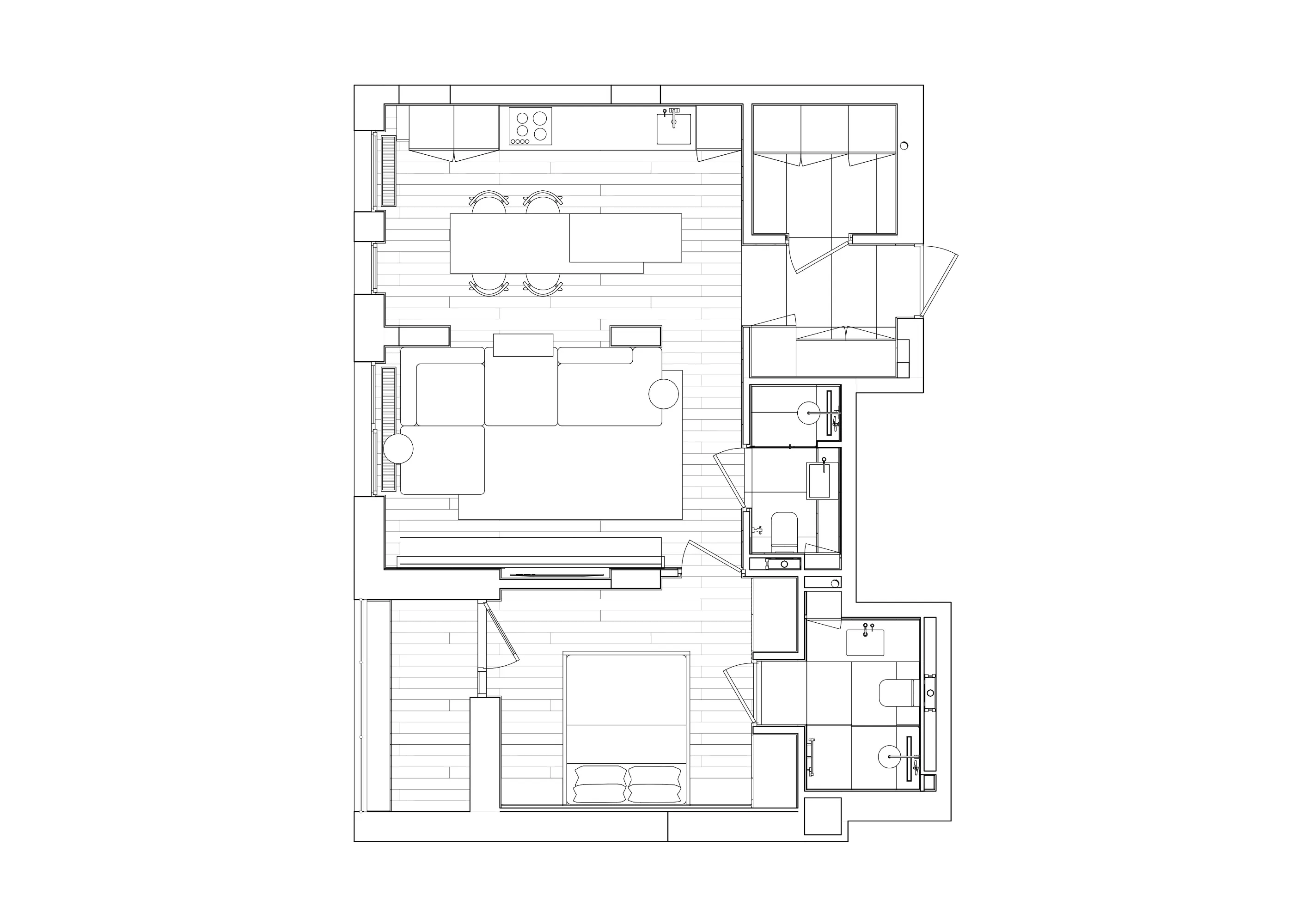
Квартира розташована в сучасному житловому комплексі «Файна Таун» в Києві. Її загальна площа складає 60 квадратних метрів і включає в себе кухню-вітальню, два санвузли, спальню, гардероб з технічною кімнатою та балкон.
З самого входу в квартиру відкривається об’єднаний простір кухні та вітальні. Кухня виконана в світлих тонах та обладнана максимально функціонально, що дозволяє оптимально використовувати простір. Кухонний острів та стіл виконані з дерева та акрилового каменю. Розташовані паралельно лінії кухні, що дозволяє зручно ними користуватися та створює ідеальний центр для збору з родиною та друзями.
Вітальня привертає увагу своїми чистими лініями та просторістю, здається візуально більшою за рахунок дзеркальної стіни, яка перевідбиває та подвоює об’єм приміщення. Великий диван, розташований навпроти ТВ тумби, є ідеальним місцем для відпочинку. Сама ж ТВ тумба, ніби невагома та висить в повітрі. Однак в нашому мінімалізмі кожна деталь має важливе значення і виконує функціональну роль, тож за дверцятами ховається телевізор, а знизу велика секційна тумба для речей.
Усі меблі в квартирі виконані по індивідуальному замовленню, що дозволило використати простір максимально зручно.
Невелика, але затишна спальня, миттєво створює відчуття спокою та відпочинку. Вона приваблює своєю теплою атмосферою, створеною завдяки матеріалам та правильному освітленню.
Дизайн цієї квартири – це про зосередження уваги на формі, матеріалі та атмосфері; це про концентрацію на важливих аспектах, таких як функціональність, комфорт та ергономіка.


















