
Inside
Автор:
Bezmirno Architects
Номінація:
Найкращий концепт проєкту
Телефон:
+380676596593
Пошта:
info@bezmirno.com
Площа проекту:
410
М2
Фотограф:
Bezmirno Architects
Вебсайт:
https://www.bezmirno.com/uk/project/inside/
Inside — це дім, який не демонструє зайвого чужим очам. Стриманий і мінімалістичний, з чіткими лініями та монолітною геометрією. Водночас відкритий і затишний завдяки теплим відтінкам та природним фактурам. Назва будинку втілює його філософію: справжня краса та гармонія розкривається всередині, у кожній деталі, кожному елементі інтер’єру.
Концепція
Ідея проєкту будинку Inside, створеного архітектурною майстернею BEZMIRNO, полягала у плануванні простору, де на відносно компактній площі ділянки нам вдалося розмістити всі функціональні зони та будівлю, які необхідні для життя великої родини. Лаконічний фасад із парканом з кортену, поєднання натурального каменю з теплим деревом та великі панорамні вікна формують сучасну архітектуру, яка водночас проста і виразна, без зайвої демонстративності. Завдяки цьому двоповерховий будинок залишається не лише функціональним, а й гармонійно інтегрованим у навколишнє середовище сонячної Іспанії.
Функціональність
Архітектором будинку передбачені всі елементи, які роблять життя зручним.
На території розташовані просторий басейн із лежаками, зелений внутрішній двір із садом і паркування на два автомобілі.
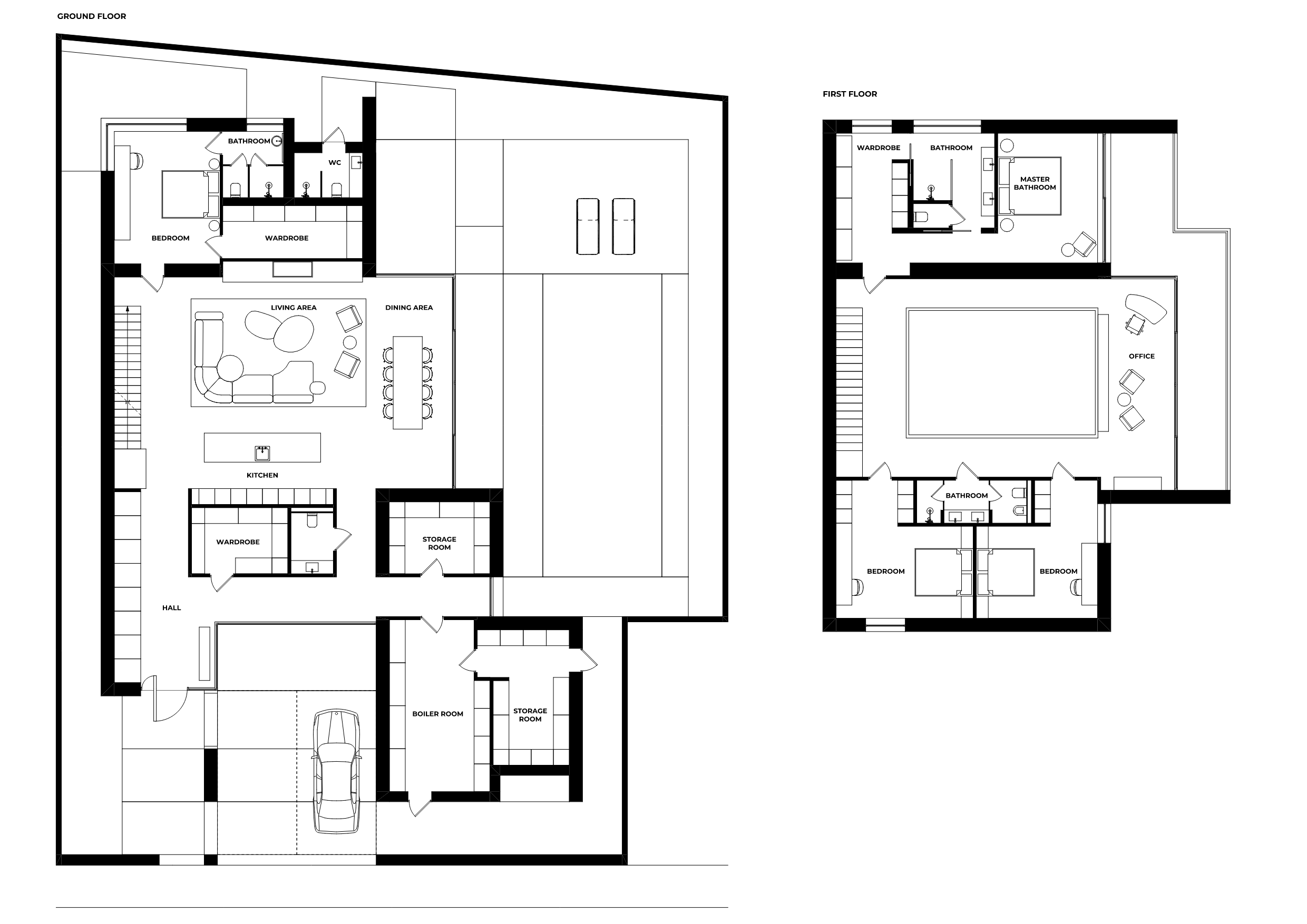
Перший поверх організовано навколо кухні-вітальні з великим обіднім столом на 8 персон та кухонним островом для приготування. Друге світло додає простору об’єму і світла, а з вітальні є прямий вихід до басейну. Тут також розташована спальня та окремий санвузол для гостей.
Другий поверх – приватна зона. Тут розміщені три спальні та зручний офіс для роботи. Такий поділ робить будинок водночас сімейним і функціональним.
Виклики та рішення
Головним завданням стало поєднання компактності ділянки з потребами великої сім’ї. Щоб зберегти відчуття свободи, ми проаналізували різні побутові сценарії та умовно поділили будинок на дві зони: перший поверх – спільний простір для зустрічей і відпочинку, другий – приватна частина для усамітнення. Такий поділ дозволяє кожному члену родини мати свій куточок, а разом із тим – легко збиратися у спільних зонах. Друге світло додатково посилює відчуття відкритості, наповнює дім простором і дозволяє дихати на повні груди.
Висновок
Inside — це сучасний будинок, який не змагається за увагу, а дарує відчуття спокою та належності. Тут архітектура працює не на показ, а для життя: кожен елемент має свій характер, а кожен простір своє призначення. Використання натуральних матеріалів, панорамних вікон та продуманих планувань створює затишну атмосферу та оптимальне природне освітлення у всіх кімнатах.
Це приклад того, як архітектурний проєкт двоповерхового будинку може поєднувати простоту форм і глибоку гармонію, забезпечуючи комфорт і зручність для всієї родини, створюючи дім, що справді належить своїй родині.


















