
Freedom - між небом і землею
Автор:
Ірина Зінченко
Номінація:
Найкращий проєкт квартири
Телефон:
+380677305965
Пошта:
irynazinchenko.design@gmail.com
Площа проекту:
42
М2
Фотограф:
Павло Ботанов
Вебсайт:
https://www.instagram.com/irynazinchenko.design/
Freedom - між небом і землею.
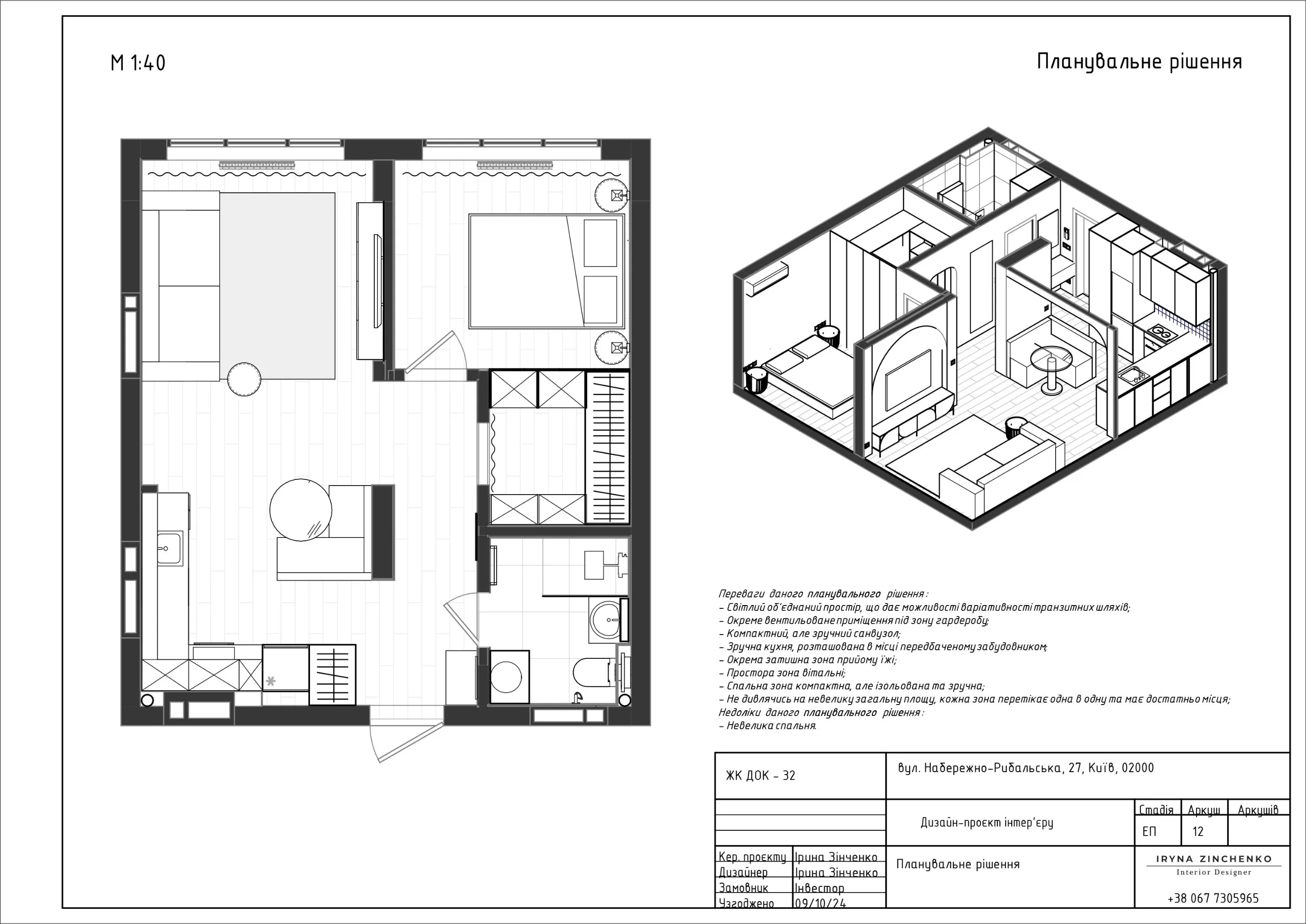
На 17-му поверсі житлового комплексу ДОК-32 відкривається новий горизонт – квартира під інвестицію з панорамою на Дніпро та лівий берег Києва. Це історія, що виходить за межі простих квадратних метрів під оренду.
Перепланування дало змогу відкрити простір: тут немає випадкових перегородок, а всі конструктивні рішення підпорядковані геометрії приміщення та вдало підтримують ідею. Приватні зони залишилися ізольованими, а простір для життя отримав логічний маршрут, де замість стін працюють сценарії руху. Такий підхід наповнив інтер’єр відчуттям легкості та свободи.
Стримана база складних відтінків стала тлом для авторських акцентів і предметів українських брендів. Чітка геометрія врівноважується плавними лініями, а різні сценарії освітлення стали інструментом трансформації, створюючи атмосферу, що тонко підлаштовується під настрій і потреби господарів.
Навіть за обмеженого бюджету вдалося реалізувати сучасний і оригінальний інтер’єр – поза шаблонами і з нотками легкої іронії. Це простір, де кожна деталь продумана, але немає нічого надмірного.
Цей проєкт – про свободу. Свободу вибору, руху, свободу бути собою. Десь там внизу вирує гомін великого міста, але тут ти ніби завис у повітрі. Тут ти вільний!























