
Terracotta Performance
Автор:
Iryna Putilovskaya
Номінація:
Best Public Project
Телефон:
+380672366048
Пошта:
irina.putilovskaya@gmail.com
Площа проекту:
147
М2
Фотограф:
Serhiy Savchenko
Вебсайт:
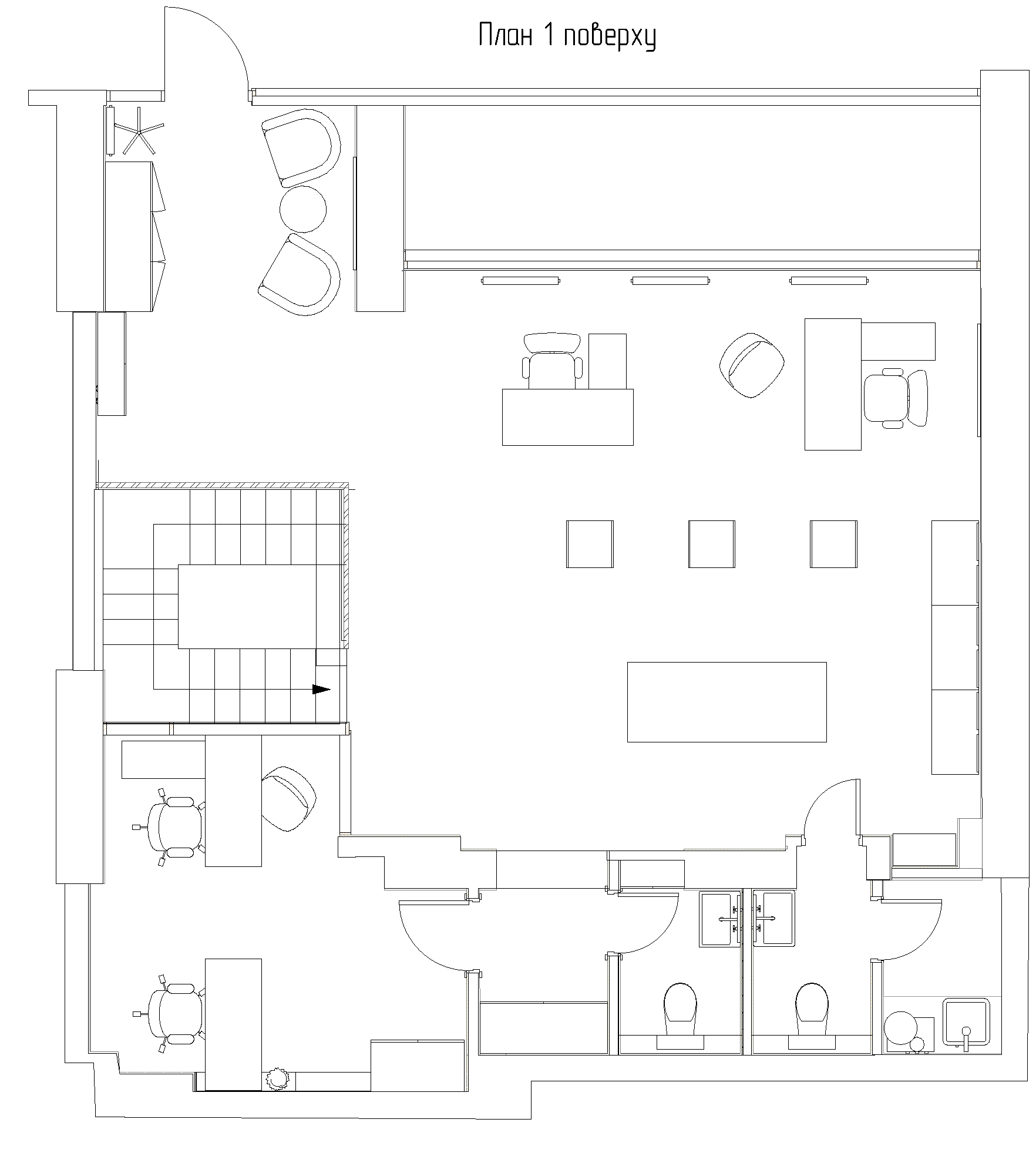
The project of an office space of 147 sq.m. aimed to create an interesting and functional space with a small budget. Customer — “Office of door fittings”. The room has a two-level structure. On the ground floor there are office offices, common areas for meetings and negotiations, as well as an exhibition of product samples. On the minus of the ground floor there are warehouses and additional work areas for managers.
The design and decoration are based on the use of modern materials. Ceramic tiles, glass and metal were used for decoration of walls and floors. The membranes between the offices are made of glass, which preserves the openness of the space and provides privacy.
To illuminate the office, pendant lamps, spotlights and LED lamps of the brand “Svitoket” were used, which made the interior very modern. The color palette includes light and neutral shades to emphasize the space and visually enlarge the rooms. Terracotta color is the accent. The use of stucco elements and metal products in graphite color as accents, gave the interior a sense of graphics and a sense of status. Stairs connecting floors are made of metal and have a complex configuration, but look easy and transparent. Handrails with an interesting pattern add softness to the rigid lines of the metal structure.
An office that deals with door fittings needs an organized and functional space. The convenient location of the stands around the perimeter of the room allows employees to quickly and easily display samples, which ensures efficient operation and quality customer service. It also facilitates the process of selecting items for each specific order. The harmonious combination of this functional purpose with the aesthetics of the office is essential to create a comfortable working environment.
The interior uses paintings by Anastasia Putilovskaya, which add brightness and special charm, creating the uniqueness of the space. The flowers in the picture in the manager's office and near the entrance group seem to come to life, and create a harmonious connection with the overall aesthetics of the office. And the works hung in the hall meet guests adding personality to the space. It is a great combination of art and design.
Thus, it was possible to create not only an efficient but also pleasant working environment, where employees can work efficiently and feel comfortable. This is really important to maintain productivity and a good mood in the team.


















