
Pentagonal Aesthetics
Автор:
Svitlana Lavrenyuk
Номінація:
The best house project
Телефон:
+380961771991
Пошта:
designsl19@gmail.com
Площа проекту:
480
М2
Фотограф:
Bunakova Irina
Вебсайт:
https://www.designsl.com.ua
Architectural interior. “Pentagonal aesthetics”
Author of the project — Svitlana Lavrenyuk
Interior of a private house near Kiev, living area 480 m².
Implementation — 2023 year.
The house, created in 2001 by a Kyiv company, was published in a specialized magazine in 2003 and awarded. Twenty years later, customers turned to me, the interior designer for its complete renovation.
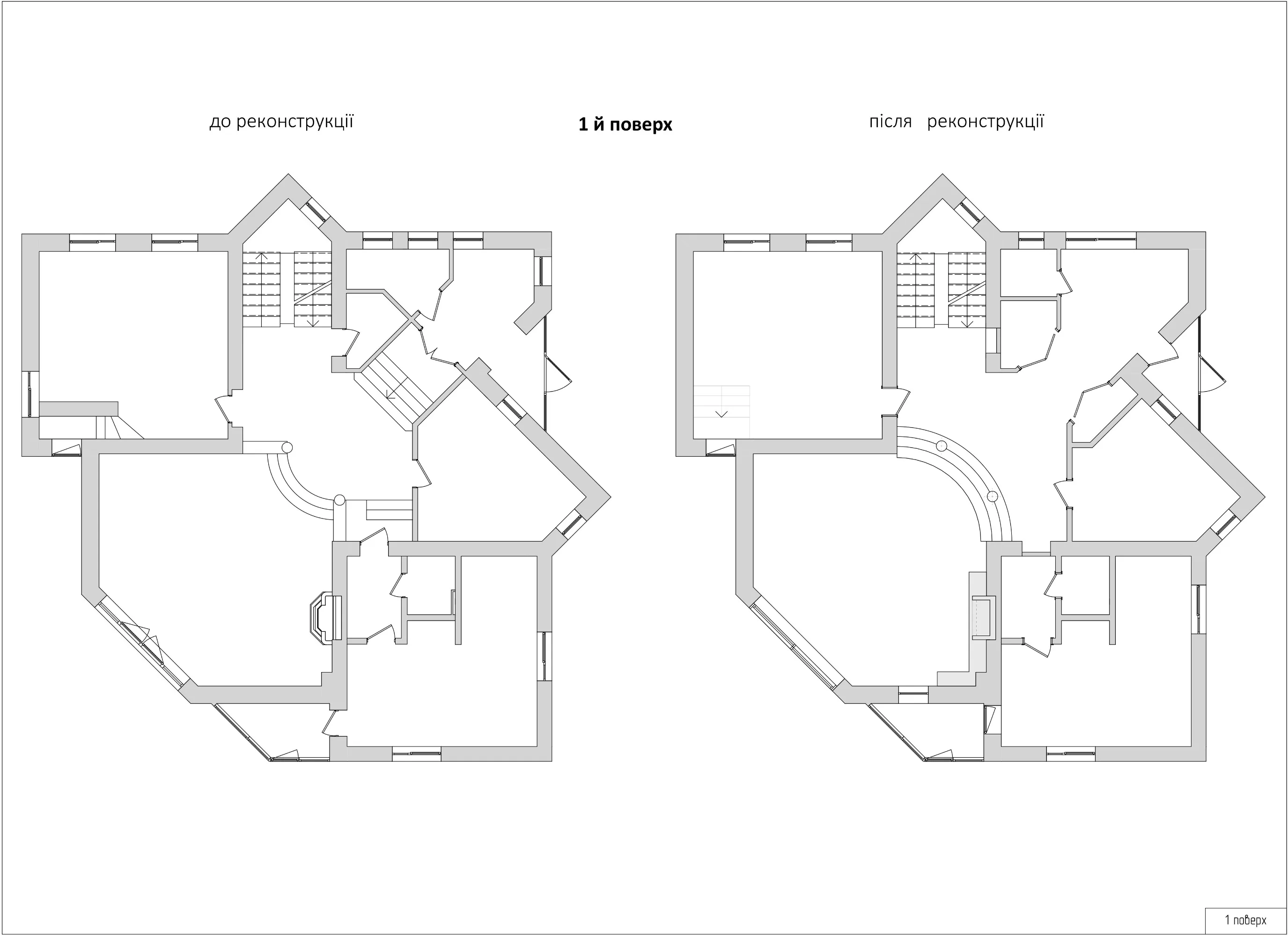
The goal for today was a complete renovation of the interior of the house, updating the style and functionality. To understand the interior space, it is worth turning to the designed architecture of the house. Imagine 2 cubes that are combined. Therefore, in the interior we see rooms with 5 corners, climbing the stairs on the walkways, we will also see the corners. But such a complex architecture of the room gave free rein to imagination, using non-standard design solutions. The new space of the interiors needed new windows or their different location. Such changes in the interior were organically combined with the reconstruction of the facades of the house.
The project is made in the favorite style of the owners - minimalism in light shades.
The main challenge is the multilayered space: floor and ceiling differences, cross beams, support columns. The lobby and living room used to have three levels, now a single open space has been created inside, and the lift leads directly to the living room. In the living room: the staircase, previously rounded inside and that delimited the area, has been transformed into a structure with an outer radius integrated with columns and multi-level beams that form a complete architectural ensemble.
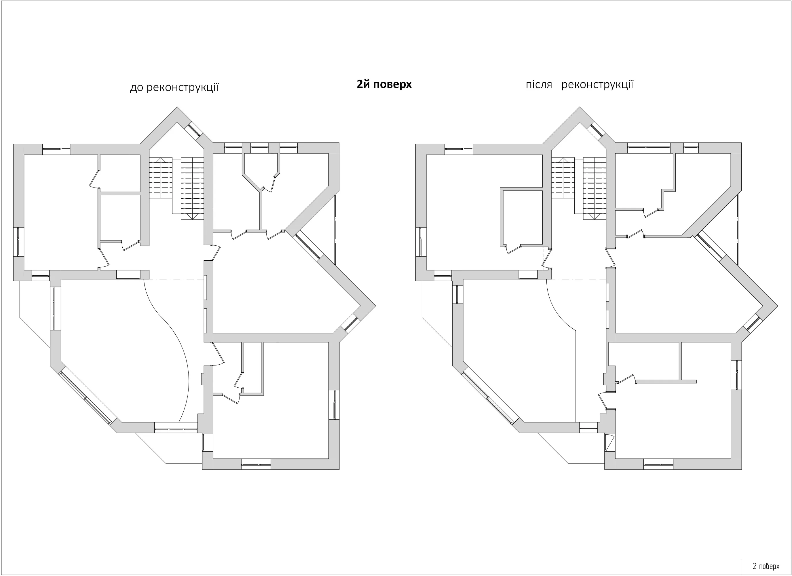
The second floor includes three bedrooms with private bathrooms. The layout of these rooms has been completely redesigned according to the new needs. The floor underwent large-scale changes due to the transformation of the cantilever floor shape: from wavy it became laconic, combining a straight line and a semicircular shape, which significantly changed the geometry and perception of space.
The third floor is a recreation area. The balcony is integrated into the room, which has increased the area of the room; panoramic windows fill the interior with light and open the feeling of space.
The interior develops the geometry of the house through lighting, textures and volumetric elements. Materials — marble, veneer, decorative plaster, mirrors and glass — create a dialogue of textures and light. Light scenarios allow you to regulate the atmosphere.
The final accent was the paintings and decorative panels, created by me specifically for each room. Aesthetic consciousness is the main thesis of design, where light, form and texture form a thoughtful and holistic interior.
Reconstruction began in 2021, was temporarily suspended in early 2022 due to the war, and in 2023 the house was given a new lease of life. Sincerely grateful to customers for their trust.























