
Laundry Delicáta
Автор:
Fateeva Design, author of the project Elena Fateeva
Номінація:
Best social project
Телефон:
+380674094479
Пошта:
fateeva.design@gmail.com
Площа проекту:
70th
М2
Фотограф:
Andriy Avdeienko
Вебсайт:
https://www.behance.net/fateeva_design
Delicáta laundry by Fateeva Design.
This project is not about design, but about the sustainability of the spirit of Ukrainians.
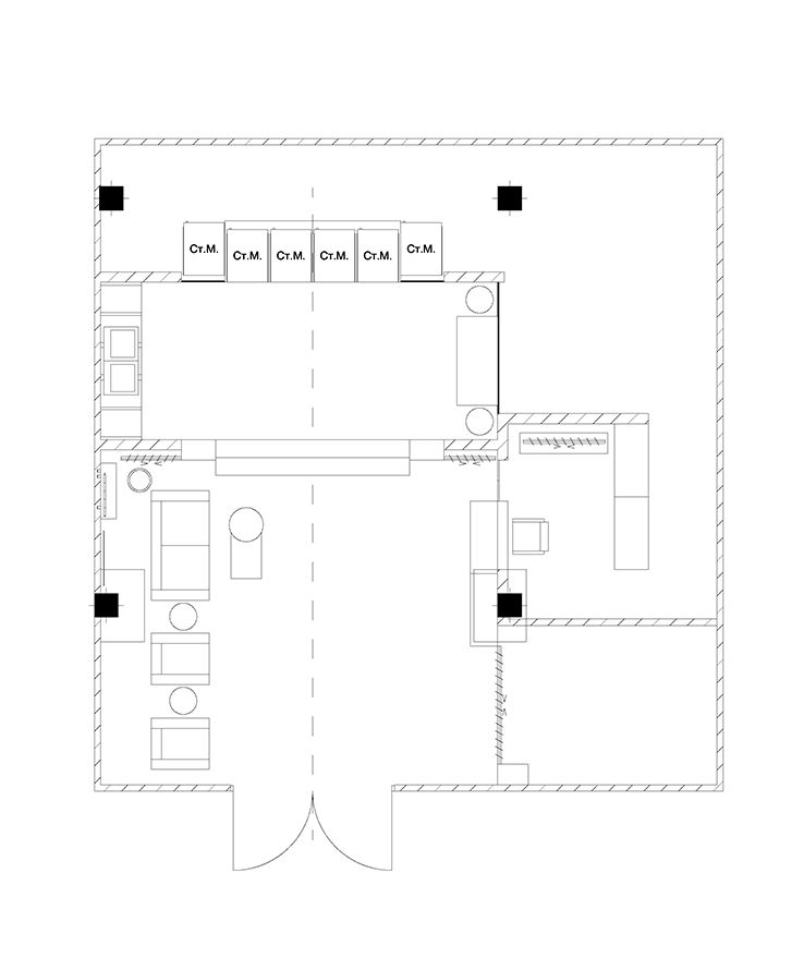
Delicáta instant laundry and dry cleaning was opened in Kyiv, a project of entrepreneur Gleb Antonov, designed by Elena Fateeva, founder of Fateeva Design studio. In the walls of the semi-basement room, where the laundry is now located, minimalism reigns, complemented by bright, almost theatrical elements of decor and furnishings. But within these same walls lives the story of the challenges posed by the authors of the project and the business owner by the war, about the difficulties of implementation during the period of blackouts and massive shelling, as well as the strength of the human desire to realize everything in spite of everything. The Delicáta laundry project was implemented partly on grant funds received by Gleb Antonov under the program “Own business” from eRobot. The start of work on the Delicáta project almost coincided with the beginning of the massive shelling of Ukraine in the autumn of 2022. Due to blackouts caused by shelling, the Fateeva Design team was unable to develop a full design project — with all the renders and detailed drawings. In part, the project had to be literally “painted” on the knees and walls of the room of the future laundry. There were times when, due to air alarms and shelling, it was not possible to get to the right store to pick up materials. All purchases and communications with builders actually took place between alarms.
Since Delicáta is primarily a laundry, and only then a design project, of course, it was the technical points that had priority in the estimates. The aesthetic side of the project had a much more tight budget. However, even in such conditions it was possible to create an interior with a unique color and its own character.













