
Elegant loft
Автор:
Lozovoy Design Lab
Номінація:
Best apartment project
Телефон:
+380961757665
Пошта:
artur.furnitura@gmail.com
Площа проекту:
35.5
М2
Фотограф:
Lozovoy Design Lab
Вебсайт:
https://www.lozovoydesignlab.com.ua
The project is located in the residential complex “City Garden”, Kharkiv city.
Start: April 2025, finish - August 2025.
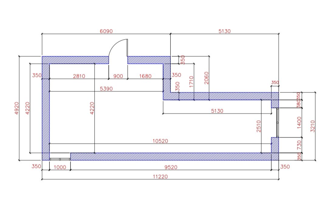
The complexity of the room was in the shape: L-shaped, with two points of water.
Also, there was a clear vehicle from the customer- a full bedroom and a bathroom in the bathroom.
The style for the work was chosen - loft, but its brutality was smoothed out by the textures and lightness of the furniture- they seem to exist and at the same time dissolve in the interior.
I also wanted to keep the ceiling height - 2.98 m.
I was inspired by European interiors and really wanted to combine them with the concept of the studio and bring something new not only to Kharkiv, but also to Ukrainian design, showing that it is possible to experiment and combine different textures.
Therefore, it was given the name- elegant loft.
Complete demolitions were made and the apartment was rebuilt from “0" with a new redevelopment.
We got:
1. Full bathroom
2. Bedroom
3. Wardrobe/Engineering
4. Kitchen-studio
5. Holly
Cabinet furniture was manufactured by “Lozovoy Design Lab”.
The customer was satisfied, as were we 🙃
p.s. video you can watch in our Instagram profile at the link:
https://www.instagram.com/reel/DL7xGxsN7dy/?igsh=bWQydThuYWtjZGps
https://www.instagram.com/reel/DL-ZBa5to2Q/?igsh=MThnNDd1NWd3amdpaw ==
https://www.instagram.com/reel/DMAMe-9Nm_z/?igsh=MTBsbzY2andwejdrMA ==
https://www.instagram.com/reel/DMGCVoZtngj/?igsh=MW0wenpyZWJxZTdzcA ==
https://www.instagram.com/reel/DMHoZUmtYje/?igsh=dG52ZGZoZHI2c2ds















