.webp)
For single
Автор:
Fateeva Design, автор проєкту Олена Фатєєва
Номінація:
Найкращий проєкт квартири
Телефон:
+380674094479
Пошта:
fateeva.design@gmail.com
Площа проекту:
30
М2
Фотограф:
Сергій Полюшко
Вебсайт:
https://www.behance.net/fateeva_design
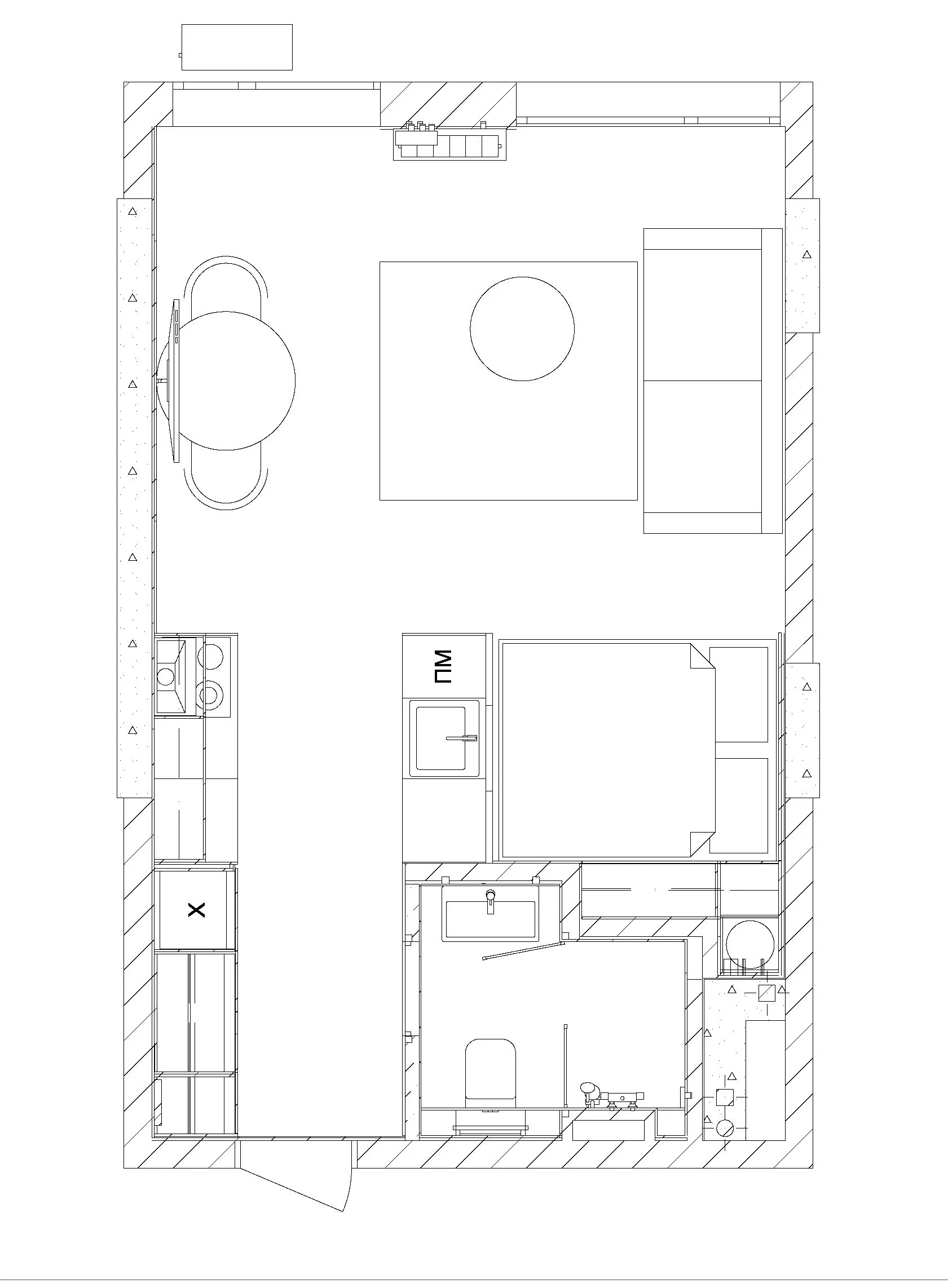
For single – не тільки назва проєкта, а і особливий жанр. Логіка інтер'єру підпорядкована стилю життя однієї людини, а отже – мінімум компромісів, максимум самовираження замовника. До того ж, як правило, подібне житло – невелике за площею та з невеликим бюджетом, а це вже певний творчий виклик для проєктанта. Адже обмеження – чудовий стимул для небанальних ідей. Це підтверджує новий проєкт Олени Фатєєвої – інтер'єр квартири площею 30 кв.
Чистий, конструктивний характер простору сформований ясним плануванням, лаконічним набором матеріалів, великою кількістю світлих поверхонь. Ефектно з'являючись у передпокої дзеркальна стіна, яка вкотре рушила простір. Складний пудровий та блакитний впевнено заявляють про себе і в living space, повністю охоплюючи блок кухні та спальні. Завдяки зіставленню двох різних середовищ (щільної, довжелезної, густо насиченої кольором – і білої, графічно-повітряної, майже нематеріальної), інтер'єр стає різноманітним і, за відчуттям, набагато просторішим, ніж того можна очікувати від фактичного метражу.
.webp)
.webp)
.webp)
.webp)
.webp)
.webp)
.webp)
.webp)
.webp)
.webp)
.webp)
.webp)
.webp)
.webp)
.webp)
.webp)